Virtual Tour

Under Construction

9928 Alani Hill Way

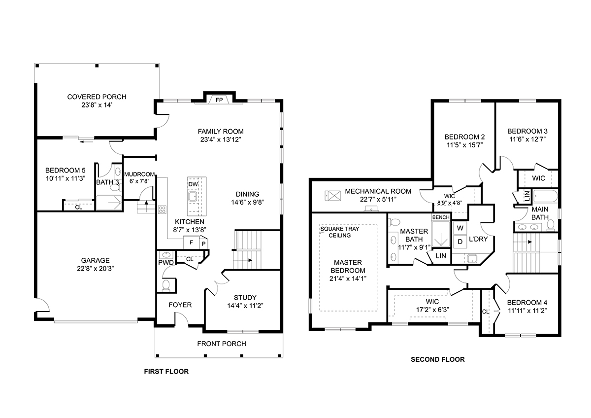
Welcome to luxury and function at 9928 Alani Hill Way. This brand-new, two-story residence spans 2,852 square feet and is perfectly designed for modern family living in the highly sought-after Concord Farr area, just moments from Knoxville.

Key Features & Design Highlights:

Expansive Living: Features 5 generously sized bedrooms and 3.5 beautifully appointed bathrooms, ensuring comfort and privacy for everyone.

Productive Spaces: Includes a dedicated study (perfect for a home office, library, or den) and a highly convenient 2nd-floor laundry room, eliminating the need to carry baskets up and down stairs.

Practical Luxury: The ground floor boasts a functional mudroom for seamless organization and a two-car garage.

Outdoor Living: Enjoy year-round entertaining and relaxation on your spacious covered outdoor living space.

Located in a prime location with easy access to shopping, dining, and major roadways, this home offers the perfect blend of suburban tranquility and city convenience. Schedule your viewing of this exceptional property today!

 

Contact:

Chad Copenhaver

 Luxury Realtor | Knox Real Estate Pro

chadcope10@gmail.com

Office 865-588-9300 | Cell 865-805-8174